


特点
LED指示灯状态,为酒店客人提供视觉指示灯,理想的新建筑,适合广泛的设计和杠杆选项,可升级的锁定固件,符合ADA标准的规定,正常大气下的腐蚀处理方法,由Onportal企业锁管理支持,支持RFID和蓝牙通信,详细的审计跟踪3000条记录
电功率
电源:1.5VDC(4xAA碱性电池)电池寿命:2年正常寿命
蓄电池位置:电子设备模块中的车门内部
概述
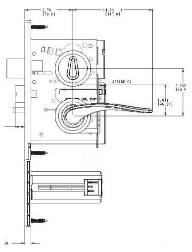
门的厚度:1-3/8”-2-1/8”(35-55mm)
最小门瓷砖:6英寸(152.4mm)/2英寸实心垂直边缘符合ADA:是
系统软件兼容性:统一门户移动访问:BLE5
支持的RFID标准:ISO14443A(MIFARE+® 和MIFARE超轻的C)
用户界面:读卡器周围的彩色灯管指示锁状态和通讯
恐慌释放功能:在紧急情况下,内杆自动拉回螺栓和锁扣。
审核日志:存储最近3000个事件的可升级的固件:是的
结构:带抗摩擦机构的钢闩结构
支撑式门类型:非金属材料中的内部门
成品:缎镍,缎铬,抛光铬,黑色铬,缎黄铜,抛光黄铜,古董黄铜,深青铜
杠杆:格拉纳达,托莱多,侧翼。支持具有8mm正方形界面的设计杠杆。
保修期:2年
环境条件
工作温度:-10C至+75C储存温度:-40C至+85C湿度:+60C/95%RH
法规合规性
根据UL10C标准批准的防火灾
根据EN1634-1标准批准的防火灾
面心立方,CE,NOM,ANATEL,BHMA,RoHS,到达
版权所有 2023 广东六洲科技有限公司 电话:020-8412-4005 手机:181-2675-8456
地址:广州市新港中路356号丽影广场B座703号 电脑版 | 手机版 粤ICP备19010699号
收到你的留言,我们将第一时间与你取得联系